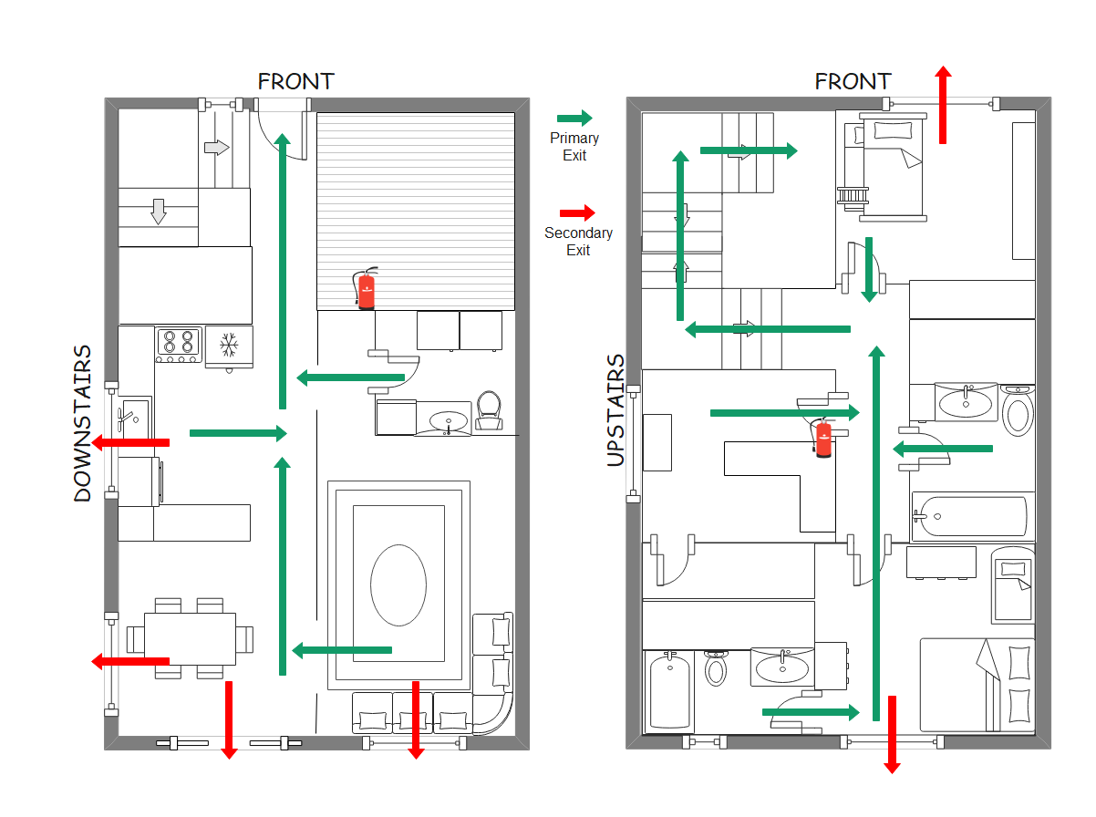
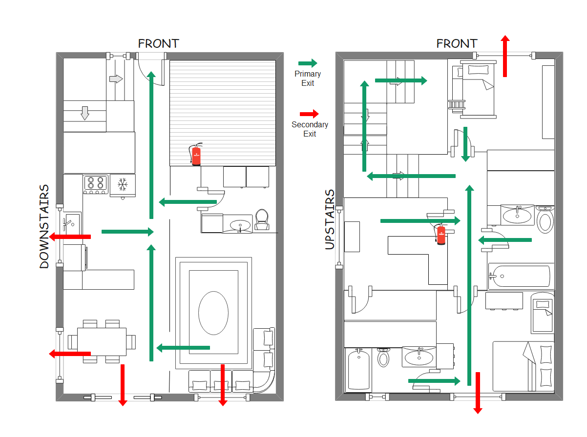
Planning for emergencies is crucial for the safety of your family and loved ones. A fire escape plan can make all the difference in case of a fire emergency. It’s vital to have a well-thought-out plan in place to ensure everyone knows what to do in case of a fire.
But creating a fire escape plan from scratch can be overwhelming. That’s where a free printable fire escape plan template comes in handy. With a printable template, you can easily customize and create a detailed fire escape plan for your home or workplace.
free printable fire escape plan template
Free Printable Fire Escape Plan Template
These free printable fire escape plan templates are designed to be user-friendly and practical. They often come in colorful designs, making them engaging for both adults and children. With easy-to-use templates, you can quickly outline escape routes, emergency contacts, and meeting points in case of a fire.
Having a fire escape plan in place not only gives you peace of mind but also ensures that everyone in your household or office is prepared for an emergency. By utilizing a free printable fire escape plan template, you can make the process of creating a plan fun and interactive.
Don’t wait until it’s too late to create a fire escape plan. Download a free printable fire escape plan template today and take the first step towards a safer environment for you and your loved ones.
Emergency Evacuation Plan Template Free Download
Home Fire Escape Plan Grid Sparky School House
Incorporating a preschool worksheet printable provides a quick strategy to encourage foundational skills. These activities work well for structured or casual learning, ensuring study time more interactive.
Fire Escape Plan Templates EdrawMax Free Editable
Get This Free Printable Fire Escape Plan To Keep Your Family Safe
Emergency Evacuation Plan Template MyDraw
Giving your child a confident head start in education is easier and more fun than ever today, an engaging, easy-to-use free printable fire escape plan template makes all the difference in keeping learning consistent,. Whether it’s simple math drills or alphabet tracing sheets, they blend entertainment with skill-building that sticks. Weave them into a consistent and enjoyable learning routine, and enjoy a shared learning journey filled with discovery. Ultimately, the right printable can turn quiet time into meaningful skill-building experiences,.





